
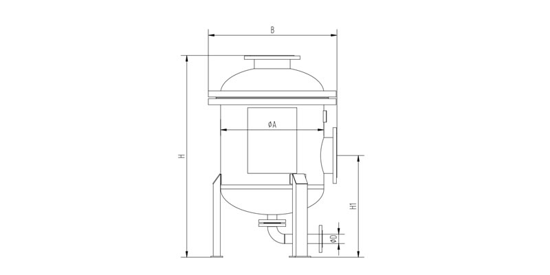
| 圖號 | 名稱 | 圖號 | 名稱 |
| 1 | 進水口 | 3 | 排污口 |
| 2 | 出水口 | 4 | 電控箱 |

| 產品型號 | 輸水管徑(mm) | 處理流量 (m3/h) |
外型尺寸(mm) | 功率 (W) |
重量 (Kg) |
||||
| φA | B | φD | H | H1 | |||||
| SLJ-QH-50 | 50 | 25 | 325 | 500 | 32 | 1100 | 335 | 150 | 136 |
| SLJ-QH-80 | 80 | 50 | 325 | 560 | 32 | 1130 | 335 | 150 | 136 |
| SLJ-QH-100 | 100 | 80 | 426 | 685 | 40 | 1330 | 420 | 200 | 190 |
| SLJ-QH-125 | 125 | 125 | 426 | 685 | 40 | 1330 | 420 | 200 | 190 |
| SLJ-QH-150 | 150 | 160 | 526 | 785 | 40 | 1435 | 425 | 200 | 270 |
| SLJ-QH-200 | 200 | 250 | 630 | 835 | 50 | 1230 | 620 | 230 | 400 |
| SLJ-QH-250 | 250 | 400 | 630 | 835 | 50 | 1330 | 620 | 230 | 450 |
| SLJ-QH-300 | 300 | 600 | 816 | 1085 | 50 | 1630 | 660 | 260 | 500 |
| SLJ-QH-350 | 350 | 1000 | 816 | 1085 | 50 | 1730 | 680 | 260 | 650 |
| SLJ-QH-400 | 400 | 1100 | 1020 | 1305 | 65 | 1930 | 780 | 300 | 800 |
| SLJ-QH-450 | 450 | 1300 | 1020 | 1340 | 65 | 2030 | 780 | 300 | 850 |
| SLJ-QH-500 | 500 | 1600 | 1220 | 1550 | 100 | 2135 | 885 | 400 | 1000 |
殺菌滅藻 線束發射極持續發射分段頻率,影響細胞的新陳代謝
防腐 頻譜轉換和活性鐵質濾膜,達到以銹制銹
防垢 控制硬質垢及污垢綜合解決復合水垢的問題
超濾過濾 干式鐵芯的電暈場效應,形成鐵質濾膜進行精過濾
①中央空調,冷水機組,制冷機;冷卻、冷凍循環水系統。
②采用系統:在供暖、供熱的熱水循環系統。
③工業、民用、冷卻水;在工業、民用、工藝冷卻循環水系統。
④公寓、酒店:生活洗浴熱水循環系統、餐飲、
⑤地熱水系統:利用地熱水進行洗浴,采暖的循環系統。